Village Square Pavillion
May, 2020
In collaboration with
Thaddeus Lee
(MIT) | Wang Di 王迪(SEU) | Zhao Jun Chen 赵俊琛(CAA)
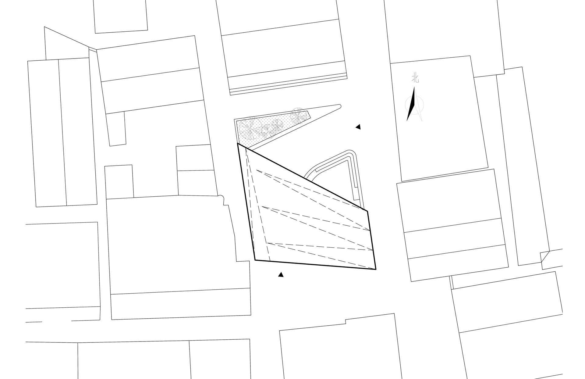
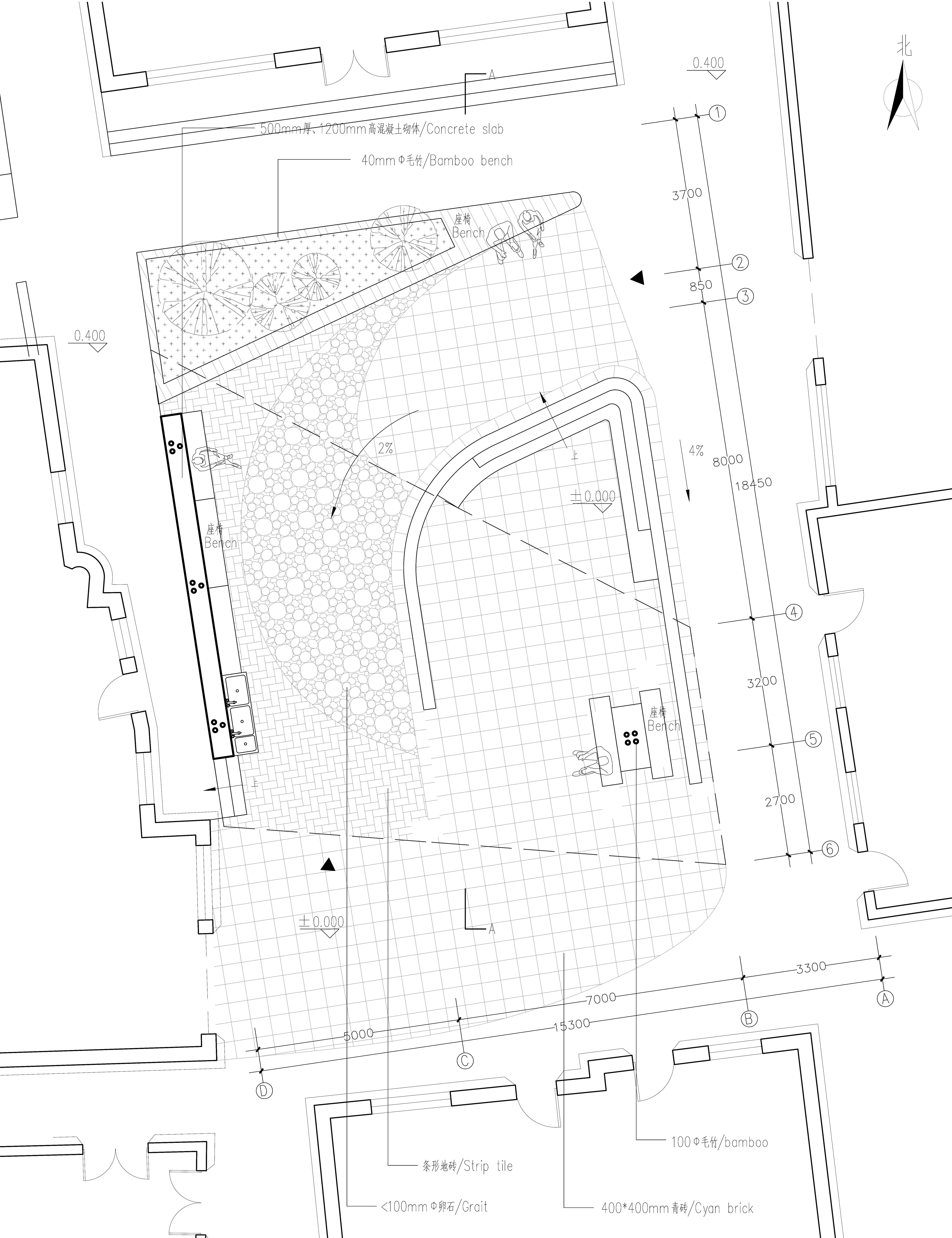
Site:
Roof Assembly
1:1 Mock-up
↑
Back to Top